★SPRZEDANE★

Wrocław, Krzyki, Międzygórska

Opis nieruchomości

Prezentuję Państwu słoneczną kawalerkę zlokalizowaną na 2 piętrze w nowoczesnym i kameralnym budynku w zabudowie atrialnej w otoczeniu licznej roślinności, tuż obok parku Klecińskiego.

-
BUDYNEK
- rok budowy 2018 r.
- winda z poziomu 0 na -1
- miejsca postojowe w hali garażowej dla mieszkańców
- komórki lokatorskie
- ciekawa klatka schodowa
- zamknięte osiedle
- przy wejściu domofon
- zlokalizowany z dala od ruchliwej ulicy

-
LOKAL MIESZKALNY
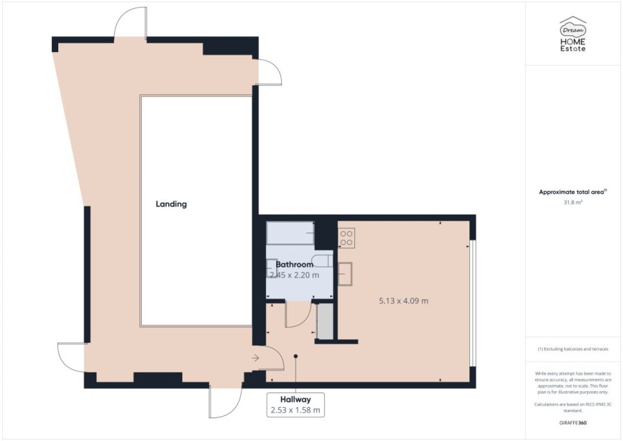
- kawalerka 31,32 m2, bez balkonu
- 2 piętro
- lokalna kotłownia
- niskie opłaty czynszowe ok. 590 zł
- w pełni umeblowane i odświeżone
- dostępne od zaraz
- pełna własność, bez obciążeń

-
PRZYNALEŻNE
- komórka lokatorska 2,93 m2 dodatkowo płatna 20 000 zł
- miejsce postojowe w hali garażowej dodatkowo płatne 45 000 zł

-
LOKALIZACJA
Mieszkanie na Klecinie to doskonały wybór dla tych, którzy w dużym mieście chcą znaleźć ciszę i spokój. Bliskość terenów zielonych - parków - Klecińskiego i Grabiszyńskiego, tworzą niepowtarzalny klimat tego miejsca.
Dodatkowymi atutami lokalizacji są:
- dobrze rozwinięta infrastruktura,
- pętla tramwajowa i autobusowa,
- szybki wyjazd z miasta w kierunku A4 i AOW
- szlaki rowerowe
- liczne kawiarnie, restauracje, żabki, apteka, przychodnia, salony kosmetyczne, fitness


-
REKOMENDACJA
Nieruchomość idealnie nadaje się dla pary lub singla ze względu na układ pomieszczeń.


-
KLUCZE W BIURZE
OFERTA NA WYŁĄCZNOŚĆ
Zapraszam do kontaktu
Natalia Sitko

Dodatkowe informacje

  • Kanalizacja
  • Woda
  • Domofon
  • Internet
  • Ogrzewanie
  • Na wyłączność
  • Winda

Wirtualne wizyty

Otwórz wirtualny spacer w nowym oknie

Zobacz na mapie

Zobacz na mapie
449 000 zł
Powierzchnia
31,32 m2
Cena za m2
14 335,89 zł / m2

Informacje

Numer oferty
146614
Typ transakcji
Sprzedaż
Powierzchnia
31,32 m2
Cena za m2
14 335,89 zł / m2
Liczba pokoi
1
Piętro
2/2
Kanalizacja
jest
Typ przyłącza wody
Woda miejska
Ogrzewanie
Kotłownia
Rok budowy
2018
Liczba wind
1
Dostępne od
2025-07-01
Forma własności
Własność
Miejsca parkingowe
Miejsca parkingowe podziemne
Typ budynku
Apartamentowiec