W CAŁOŚCI LUB PO PODZIALE | USŁUGI | JEDNORODZINKA

Wrocław, Lipa Piotrowska, Pełczyńska

Opis nieruchomości

Przedstawiam na sprzedaż atrakcyjnie położoną działkę zabudowaną domem do kapitalnego remontu lub wyburzenia, zlokalizowaną we Wrocławiu na osiedlu Lipa Piotrkowska, przy ulicy Pełczyńskiej. Działka w całości sprawdzi się najlepiej pod kątem usług ze względu rozbudowujące się w pobliżu osiedle Lipa Piotrkowska, Widawa i Polanowice. Może także stanowić dobrą inwestycję kapitału.

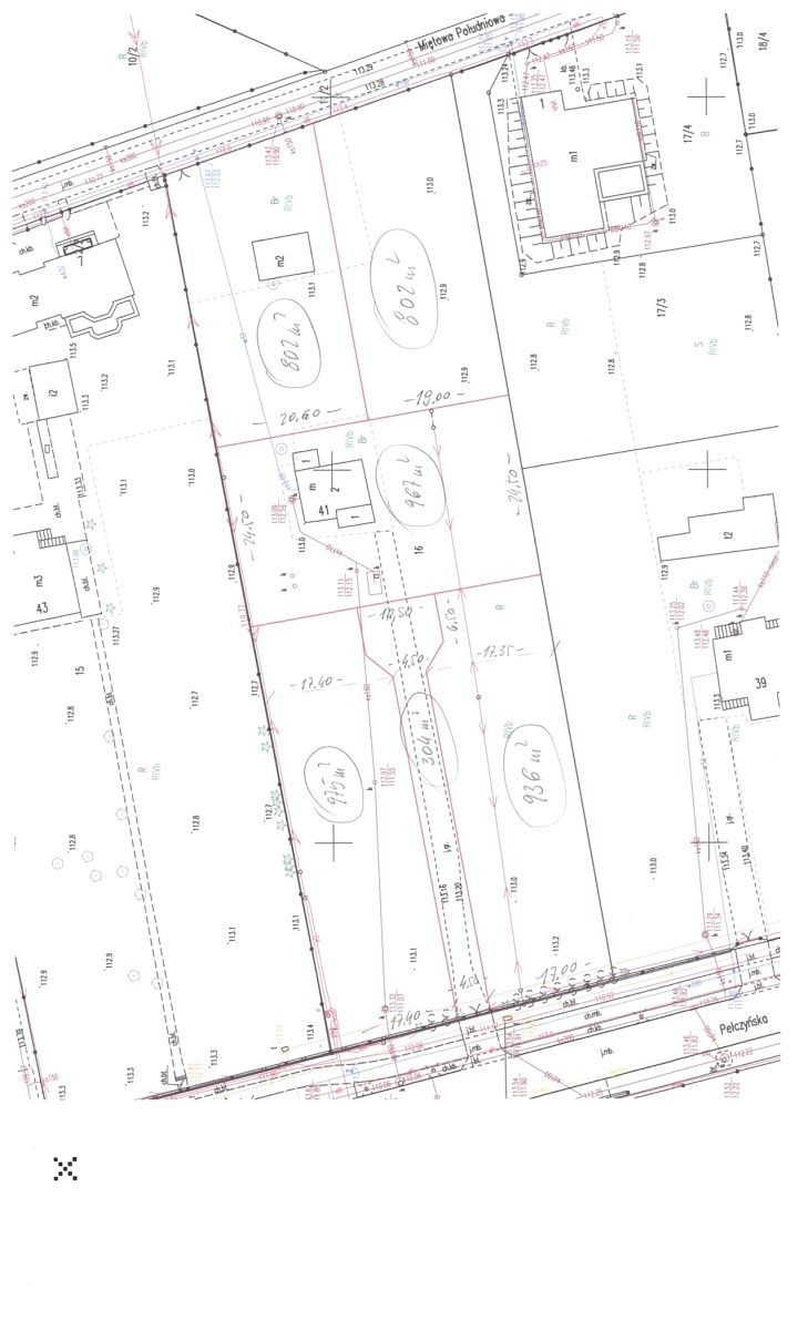
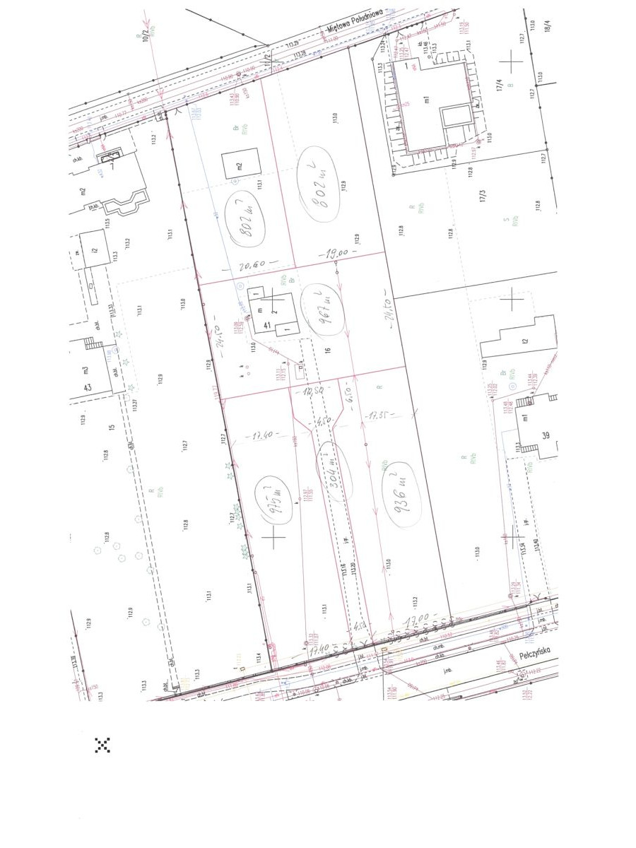
Aktualnie przeprowadzany jest podział na mniejsze działki pod kątem zabudowy jednorodzinnej, projekt podziału na ostatnim zdjęciu. Ceny mniejszych działek uzależnione od przeznaczenia. 

NAJWAŻNIEJSZE INFORMACJE:

- powierzchnia działki 4784 m2
- przybliżone wymiary: 120 m x 40 m
- działka objęta MPZP
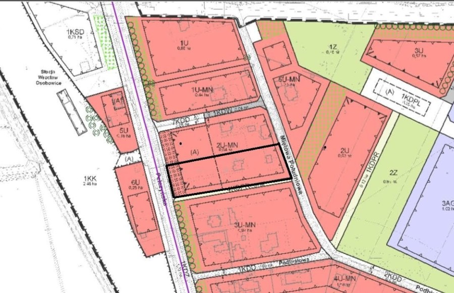
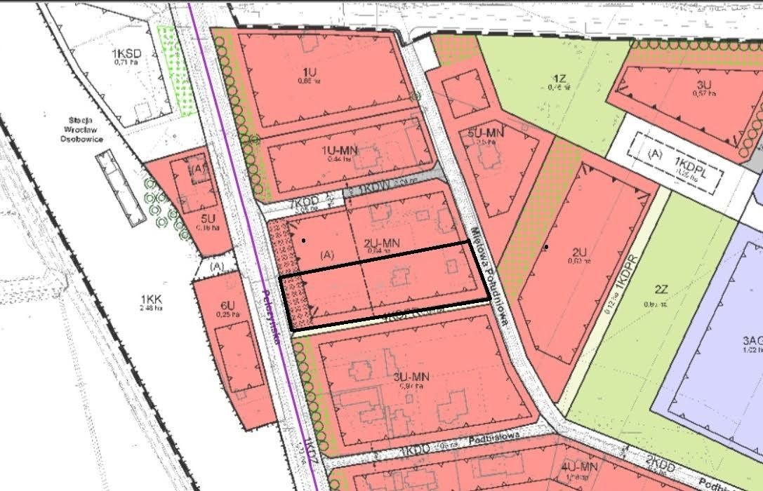
- przeznaczenie w planie U-MN (szczegóły poniżej)
- dostępne media:
• prąd
• woda
• kanalizacja
• gaz w drodze
- dojazd drogą asfaltową
- działka częściowo ogrodzona
- okoliczna zabudowa jednorodzinna i usługowa
- NOWA CENA 3.199.000 zł - promocja do końca roku (stara cena 3.699.000 zł)

LOKALIZACJA:

- przystanek autobusowy 2 min spacerem
- stacja PKP Wrocław Osobowice 2 min spacerem
- wjazd na S5 i A8 (Wrocław Północ) 3 min samochodem
- sklep 5 min spacerem
- szkoła 6 min samochodem

MIEJSCOWY PLAN ZAGOSPODAROWANIA PRZESTRZENNEGO

Działka objęta MPZP z oznaczeniem 2U-MN - zabudowa usługowo-mieszkaniowa, o następującym przeznaczeniu:
§ 37. 1. Dla terenu oznaczonego na rysunku planu symbolem 2U-MN ustala się przeznaczenie:
1) usługi
a) handel detaliczny małopowierzchniowy A,
b) gastronomia,
c) rozrywka,
d) obiekty upowszechniania kultury,
e) pracownie artystyczne,
f) biura,
g) usługi drobne,
h) poradnie medyczne,
i) pracownie medyczne,
j) obiekty opieki nad dzieckiem,
k) edukacja,
l) zakłady lecznicze dla zwierząt,
m) obiekty kształcenia dodatkowego,
n) produkcja drobna
2) mieszkania towarzyszące, z zastrzeżeniem ust.2 pkt 3;
3) zabudowa mieszkaniowa jednorodzinna, z zastrzeżeniem ust.2 pkt 4;
4) infrastruktura drogowa;
5) obiekty infrastruktury technicznej.
2. Na terenie, o którym mowa w ust. 1, obowiązują następujące ustalenia dotyczące ukształtowania
zabudowy i zagospodarowania terenu:
1) dla przeznaczenia terenu: obiekty opieki nad dzieckiem, edukacja, zabudowa mieszkaniowa jednorodzinna obowiązuje stosowanie rozwiązań technicznych w budynkach, które zapewniają w nich właściwe warunki akustyczne;
2) budynki mieszkalne jednorodzinne dopuszcza się wyłącznie jako wolno stojące;
3) mieszkania towarzyszące dopuszcza się wyłącznie w wydzieleniu wewnętrznym (A);
4) w wydzieleniu wewnętrznym (A) nie dopuszcza się zabudowy mieszkaniowej jednorodzinnej;
5) wymiar pionowy budynku lub budowli przekrytej dachem, mierzony od poziomu terenu przy budynku lub budowli do:
a) najwyższego punktu pokrycia dachu nie może być większy niż 12 m,
b) najwyższego punktu obudowy estetycznej nie może być większy niż 15 m;
6) wymiar pionowy budowli nieprzekrytej dachem, mierzony od poziomu terenu przy budowli do jej
najwyższego punktu, nie może być większy niż 10 m;
7) obowiązuje obudowa estetyczna urządzeń budowlanych, technicznych i instalacji zamontowanych na dachach ze wszystkich stron;
8) ustalenie, o którym mowa w pkt 7, nie dotyczy: anten, kolektorów słonecznych, urządzeń
fotowoltaicznych, instalacji odgromowej;
9) budynek mieszkalny jednorodzinny dopuszcza się wyłącznie na działce budowlanej o powierzchni
nie mniejszej niż 800 m2;
10) wartość wskaźnika intensywności zabudowy może być równa lub większa od 0, przy czym nie może przekroczyć wartości 1,0;
11) obowiązuje nawierzchnia do specjalnego opracowania na obszarze wskazanym na rysunku planu;
12) dla nawierzchni do specjalnego opracowania, o której mowa w pkt 11:
a) obowiązuje wymóg jednorodnego kształtowania posadzki oraz oświetlenia i urządzenia zieleni, w celu otrzymania jednolitego, kompleksowego zagospodarowania pod względem wyposażenia, charakteru
i kompozycji,
b) obiekty do parkowania dopuszcza się wyłącznie jako parkingi dla rowerów, przy czym ich powierzchnia nie może być większa niż 10% nawierzchni;
13) udział powierzchni zabudowy w powierzchni działki budowlanej nie może być większy niż 30%;
14) powierzchnia terenu biologicznie czynnego musi stanowić co najmniej 30% powierzchni działki
budowlanej.
3. Dojazd do terenu, o którym mowa w ust.1, dopuszcza się wyłącznie od terenów 1KDZ, 2KDD, 7KDD
i 1KDW

Zapraszam do kontaktu !

OPIEKUN OFERTY
Martyna Szczepaniuk 
tel. 660 713 719
martyna.szczepaniuk@dream.nieruchomosci.pl

Dodatkowe informacje

  • Gaz
  • Kanalizacja
  • Prad
  • Woda

Zobacz na mapie

Zobacz na mapie
3 199 000 zł
Powierzchnia
4 784 m2
Cena za m2
668,69 zł / m2

Informacje

Numer oferty
488900517
Typ transakcji
Sprzedaż
Powierzchnia
4 784 m2
Cena za m2
668,69 zł / m2
Droga dojazdowa
Asfaltowa
Ogrodzenie
Mieszane
Długość działki
120
Szerokość działki
40
Typ działki
Usługowo-Mieszkaniowa